Anna Kránitz
Giovanni D’Anna
Giovanni D’Anna
Typologie ● Housing
Lehrveranstaltung ● City and Density – Designing for Paris
Lehrende ●
Leonhard Panzenböck, Umberto Napolitano
Jahr ● 2022
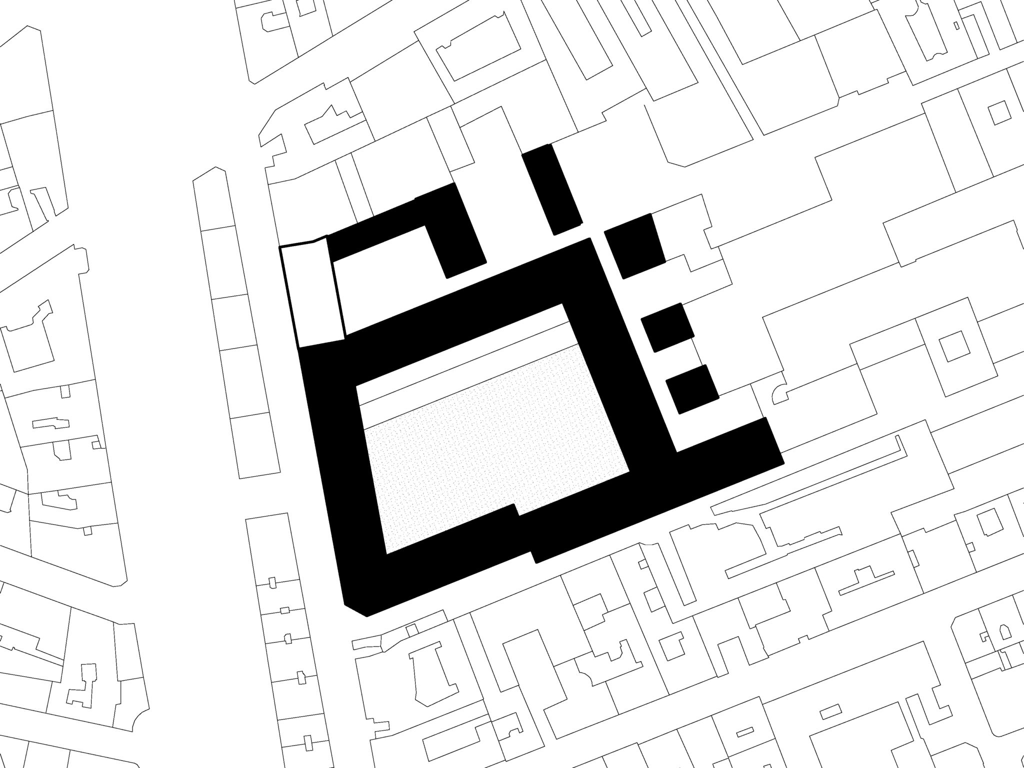
Das Projekt Vis-a-vis beschäftigt sich mit der einzigartigen urbanen Struktur von Paris, die in der Hausmann-Ära entstand. In einem Block, der von der Regel abweicht, wird die Notwendigkeit für Kontinuität und Erneuerung in Frage gestellt. Durch eine Strategie mit gezieltem Einsatz von Öffnen und Verbinden wird der Bauplatz als eine Fortsetzung von den umliegenden Bestand- und Luftraum-Fragmente integriert. Gleichzeitig bietet er Raum für eine fehlende Qualität in der Stadt: der kultivierte Garten.





