Forschungspreis Architektur der Bundessektion Architekt:innen 2025 für Matthias Treviranus
Forschungspreis Architektur der
Bundessektion Architekt:innen 2025 für Matthias Treviranus
STRUKTUR (&) WANDEL
— Ein adaptives System zur Nachverdichtung im urbanen Kontext der Gründerzeit
Diplomarbeit, betreut von Prof. Tina Gregoric und Katharina Urbanek, Forschungsbereich Gebäudelehre und Entwerfen
Unsere Gesellschaft verändert sich stetig. Daher braucht es eine flexible Architektur, die den sich verändernden sozialen, funktionalen und räumlichen Bedürfnissen gerecht wird. Gerade im urbanen Kontext wechseln Gebäude häufig ihre Nutzer:innen und müssen dem Wandel des städtischen Lebens standhalten. Als positives Beispiel zeigt die Stadt Wien, deren Stadtbild noch heute geprägt ist von vielen Gebäuden aus dem 19. Jahrhundert, wie die Architektur Veränderungen über einen langen Zeitraum möglich macht. Der Fokus des Kontextes legt sich auf die Baulücken des dicht bebauten Wiener Stadtgebiets, die ein hohes Potenzial für die effiziente Nachverdichtung und die Schaffung von Wohnraum in der Stadt darstellen.
Durch einen prototypischen Entwurf wird ein multiplizierbares System geschaffen. Dieses gilt vor allem als skalierbares Konzept für die räumliche und strukturelle Organisation, welches über Variablen an den Kontext angepasst werden kann und so für weitere Grundstücke adaptiert wird. Das System bietet den Rahmen für eine individuelle Gebäudegestaltung und ist vor allem darauf ausgelegt, größtmögliche Flexibilität in der Nutzung im Verhältnis zum baulichen Aufwand von Veränderungen zu gewährleisten. Daher ist das Bauwerk nicht als fertiges Objekt zu sehen, sondern als Prozess, der durch die Nutzenden weiterentwickelt wird.
Durch die Auslegung auf Resilienz und Langlebigkeit ist der Entwurf somit ein Vorschlag für die nachhaltige Gebäudeentwicklung der Zukunft.
KONZEPT
Der Entwurf verfolgt das Ziel der Adaptivität: Ein Gebäude, das sich im Laufe seiner Nutzung weiterentwickeln kann. Im Zentrum steht die Idee der Polyvalenz – Räume werden bewusst nutzungsneutral gestaltet, um unterschiedlichsten Wohn-, Arbeits- oder Gemeinschaftsformen Raum zu geben. Diese Offenheit wird durch klare Rasterstrukturen, gleichwertige Raumproportionen und hohe Decken unterstützt. Dienende Funktionen (z. B. Küchen, Sanitärbereiche) werden in eine sekundäre Schicht ausgelagert, um die primären Räume flexibel kombinierbar und dauerhaft offen für verschiedene Nutzungen zu halten.
Die Partizipation der Nutzer:innen ist integraler Bestandteil des Entwurfs: Durch die Trennung von statischer Struktur und flexiblen Ausbauten wird die individuelle Aneignung und Umgestaltung ermöglicht. Gleichzeitig zielt der Entwurf auf eine hohe soziale Durchmischung ab – mit vielfältigen Wohnangeboten, gemeinschaftlichen Einrichtungen und öffentlichen Freiräumen. So entsteht ein lebendiger, resilienter Ort mit städtebaulicher Verankerung. Der Entwurf versteht sich als adaptives System, das sich auf andere Grundstücke übertragen lässt und dennoch spezifisch auf den jeweiligen Kontext reagieren kann.
GEBÄUDEORGANISATION
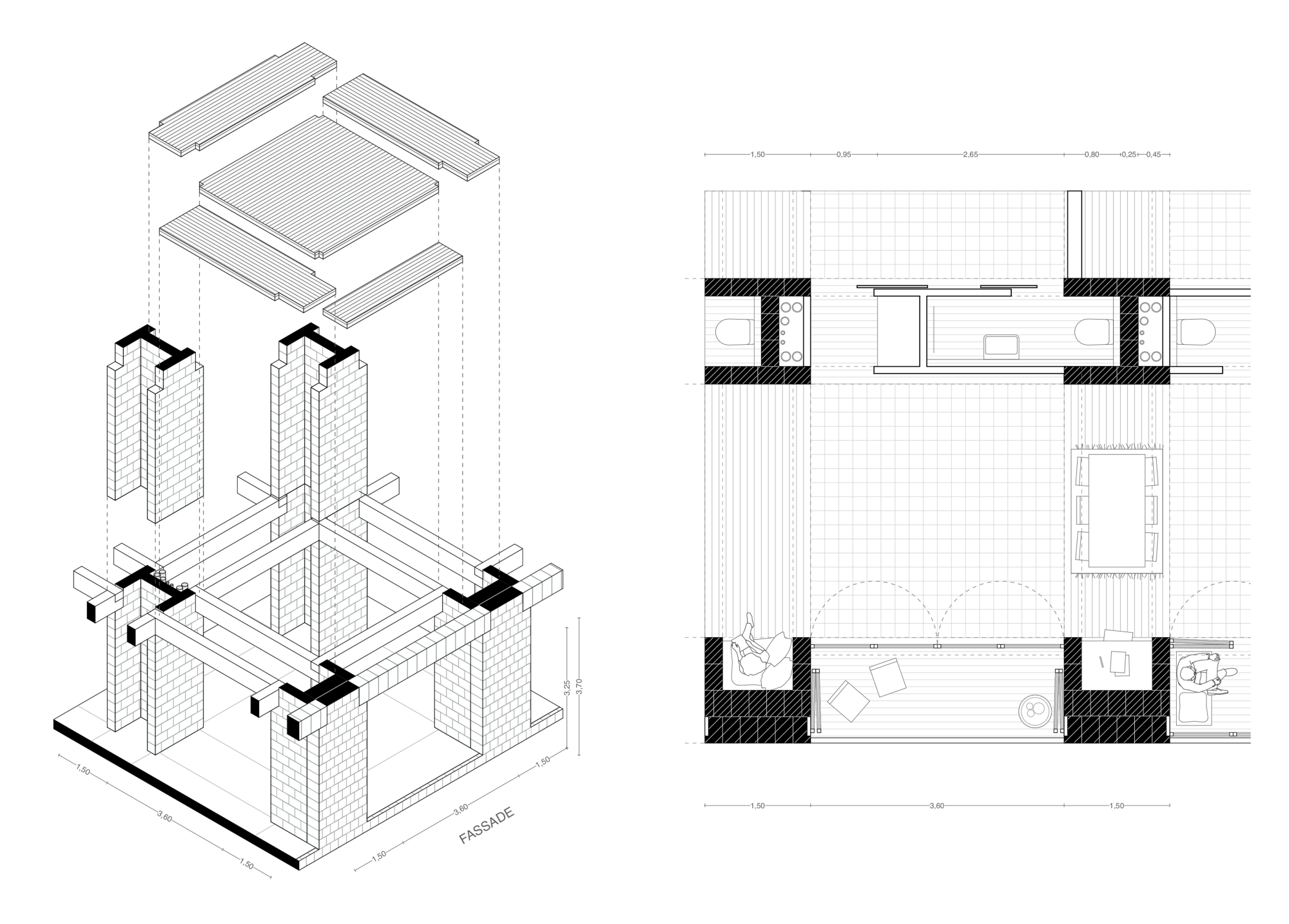
Die räumliche Organisation basiert auf einem präzisen Raster, das quadratische Haupträume und dienende Zwischenzonen definiert. Diese Struktur ermöglicht eine klare Trennung von flexiblen und festen Bereichen und unterstützt dadurch freie Raumkombinationen. Die Organisation erfolgt über vier zentrale Elemente: äußere und innere Tragstruktur, offene Raummodule und Pufferzonen. Vertikal und horizontal entsteht so eine fein abgestimmte Zonierung, die Aufenthaltsqualitäten schafft und Orientierung bietet. Besonders im Erdgeschoss wird durch die offene Fassade eine starke Verbindung zum Stadtraum erzeugt, wodurch das Gebäude den öffentlichen Raum erweitert.
STRUKTUR UND MATERIALITÄT
Die sichtbare Tragstruktur prägt maßgeblich die räumliche und atmosphärische Identität des Gebäudes. Sie besteht aus monolithischen Ziegelwänden und vorgefertigten Holzelementen, die konstruktive Klarheit und Lesbarkeit erzeugen. Die Struktur bleibt bewusst sichtbar und gibt dem Gebäude seinen Charakter. Auch in der raumbildenden Fassade wird die Konstruktion nicht versteckt, sondern mit einer dünnen Kalkputzschicht lediglich geschützt. Das Gebäude wird so nicht als neutrale Hülle, sondern als identitätsstiftender Raumträger verstanden, der die individuelle Entwicklung und Gestaltung fördert.
AUSBLICK
Das ständige Hinterfragen unserer gesellschaftlichen Strukturen und Hierarchien ist ein wichtiger Faktor, um sie weiter zu entwickeln. Die Gesellschaft befindet sich in einem permanenten Wandel – dies muss sich auch in der Architektur widerspiegeln.
Wie also können Bauwerke den Veränderungen unserer Gesellschaft, unseren wechselnden, sozialen Bedürfnissen und unseren Anforderungen an sie gerecht werden?
Die Antwort scheint naheliegend und doch äußerst kompliziert:
Sie müssen mit ihren Nutzer:innen wachsen. Sie müssen Raum für das Unvorhersehbare lassen und den Menschen in den Vordergrund ihrer Entwicklung stellen. So wurde ein flexibles System entwickelt, das Raum lässt für Veränderungen und sich den Nutzer:innen unterordnet. Dennoch ist das Gebäude keine austauschbare Hülle. Durch Aufbau und Struktur bekommt es Charakter und eine Identität, die es im Stadtraum verankert. Es wird als Objekt gesehen, das über die Jahre hinweg gepflegt, transformiert, weiterentwickelt und bespielt wird. Die Geschichte des Gebäudes ist mit Abschluss der Errichtung nicht zu Ende, sondern hat gerade erst begonnen.
Link Bundeskammer der Ziviltechniker:innen Preisträger:innen Forschungspreise Architektur 2025:
https://www.arching.at/aktuell/veranstaltungen/forschungspreisverleihung-architektur/preistraegerinnen
Link project pdf
https://www.arching.at/…











